立即預約 立即預約
免費定制整裝家居

免費定制整裝家居

一站置家 全程無憂 一省到底
hide.png

當前位置: 首頁 > 裝修案例效果圖 > 月星中央公園

月星中央公園 104平 新中式風格效果圖

收藏
案例風格 新中式 案例戶型 三居 案例面積 104平米
樓盤名稱 月星中央公園 設計師 林鳳裝飾設計師 案例類型 改善性住宅

設計理念:當禪意的新中式遇到莫蘭迪系色彩,讓原本平靜的空間起了一絲波瀾,猶如夏日里的蟬鳴,響亮卻不突兀。

客廳
第1張
第2張
餐廳
第1張
臥室
第1張
第2張
第3張
第4張
衛(wèi)生間
第1張
第2張
廚房
第1張
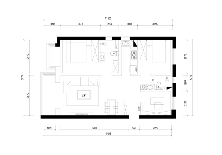
戶型圖
第1張
  • 案例詳情

月星中央公園-104平-新中式-首圖.jpg 月星中央公園-104平-新中式-客廳-(2).jpg

月星中央公園104平3居室新中式風格林鳳裝飾的客廳摒棄復雜的頂面設計,運用簡潔的現代感角線作為頂立面的交接,很好的分割空間,配合簡約中式家具輕松勾勒出中式畫面的空間。

月星中央公園-104平-新中式-餐廳.jpg

月星中央公園104平3居室新中式風格林鳳裝飾的餐廳

月星中央公園-104平-新中式次臥室.jpg 月星中央公園-104平-新中式-客廳-(2).jpg 月星中央公園-104平-新中式-臥室-(1).jpg 月星中央公園-104平-新中式-臥室-(2).jpg

主臥室說明:跳躍的藍色壁紙背景墻,在原木的家具搭配下歡快又不失整體。淺色的地板顯得干凈整潔,整個空間很溫馨

月星中央公園-104平-新中式-衛(wèi)生間-(1).jpg 月星中央公園-104平-新中式-衛(wèi)生間-(2).jpg

月星中央公園104平3居室新中式風格林鳳裝飾的衛(wèi)生間運用暖灰色調的墻磚強化衛(wèi)浴空間的整體性。深色的浴室柜顯得很沉穩(wěn),白的的馬桶簡潔提亮。

月星中央公園-104平-新中式-廚房.jpg

月星中央公園104平3居室新中式風格林鳳裝飾的廚房大紋理的墻面瓷磚增加了空間的延展性,與紅木色整體定制櫥柜相得益彰,讓空間明凈且具有超強的質感。

月星中央公園-104平-新中式-平面圖.jpg

案例設計師

林鳳裝飾設計師

設計師:林鳳裝飾設計師

從業(yè)時間:11年

設計理念:用藝術的心去生活,用生活的智慧去完善升華藝術!

預約設計師

算算你家裝修多少錢

報名即享豐厚贈品,享半價裝修

免費報價
咨詢熱線:400-656-9909
20190221103704574636.jpg

精品設計案例

20180612134930523248.jpg 服務號二維碼.jpg