立即預約 立即預約
免費定制整裝家居

免費定制整裝家居

一站置家 全程無憂 一省到底
hide.png

當前位置: 首頁 > 裝修案例效果圖 > 陽光城未來悅|現代

陽光城未來悅|現代 165平 現代簡約風格效果圖

收藏
案例風格 現代簡約 案例戶型 二居 案例面積 165平米
樓盤名稱 陽光城未來悅 設計師 李雪 案例類型 改善性住宅

設計理念:設計師設計理念: 根據不同人的需求,設計不同的居室。

客廳
第1張
第2張
餐廳
第1張
臥室
第1張
第2張
衛(wèi)生間
第1張
第2張
廚房
第1張
衣帽間
第1張
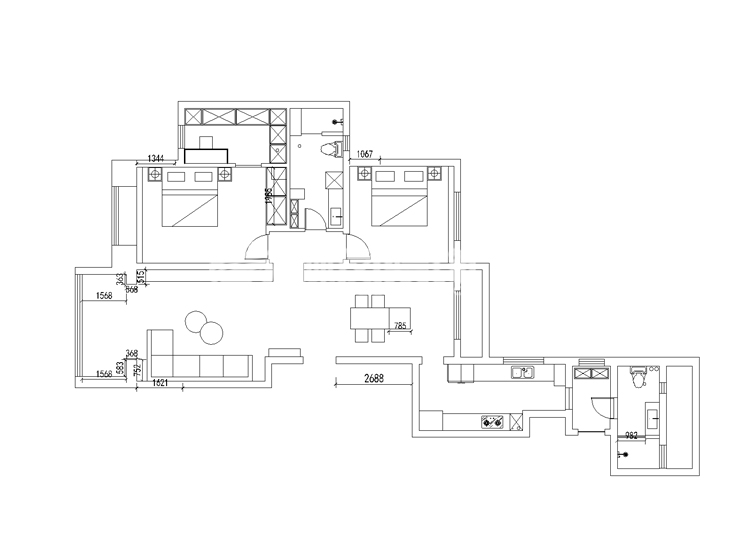
戶型圖
第1張
s5-設計五部-李雪-160㎡-現代-首圖.jpg s5-設計五部-李雪-160㎡-現代-客餐廳2.jpg

客廳說明: 客廳是會客的場所,所以在設計方面考慮的多一些,所有的埡口進行了木作包口,增加的客廳的美觀度,也能更好的防止磕碰,電視背景墻選用白色石材上墻,干凈大方,增加了港式風格的特點,客廳采用平棚的設計,增加整體的照明亮度和設計感。

s5-設計五部-李雪-160㎡-現代-客餐廳.jpg

餐廳說明: 吃飯的地方就是在餐廳,利用吊棚的設計和燈帶的感覺來進行客餐廳的分區(qū),餐邊柜的設計增加整體的收納,也能增加整體的增次感。

s5-設計五部-李雪-160㎡-現代-臥室.jpg s5-設計五部-李雪-160㎡-現代-主臥.jpg

臥室說明:臥室是人們睡覺的一個空間,因為喜歡深色調所以整體以深色系為主,選擇比較深色的復合地板,比較實用于地熱,也容易清潔。盡可能的降低成本,屋內的裝修還是要簡潔實用,沒必要裝修的太過繁華。

s5-設計五部-李雪-160㎡-現代-衛(wèi)生間.jpg s5-設計五部-李雪-160㎡-現代-衛(wèi)生間2.jpg

衛(wèi)生間說明: 衛(wèi)生間有窗戶,采光會比較好,選用一字型的浴屏來將淋浴區(qū)和其他位置隔離,業(yè)主的 想法是深色調為主,所以選用深色系墻磚地磚,洗手盆選用長吊柜,這樣柜的下方也可以放洗腳盆,清潔衛(wèi)生也比較方便。

s5-設計五部-李雪-160㎡-現代-廚房.jpg

廚房說明: 廚房是一個做飯儲物清潔的一個場所,雙排櫥柜,洗菜盆放在窗下,刷碗到時候空氣流動性比較好,也可以觀察園區(qū)的環(huán)境,另一邊擺放煙機灶具,中間可以放一個菜板,洗完菜之后切菜,然后炒菜,動線合理,棚頂選擇鋁扣板的吊頂,好清潔。

s5-設計五部-李雪-160㎡-現代-步入式衣柜.jpg s5-設計五部-李雪-160㎡-現代-平面.jpg

案例設計師

李雪

設計師:李雪

從業(yè)時間:6年

設計理念:設計源于生活,而又升華于生活。

預約設計師

算算你家裝修多少錢

報名即享豐厚贈品,享半價裝修

免費報價
咨詢熱線:400-656-9909
20190221103704574636.jpg

精品設計案例

20180612134930523248.jpg 服務號二維碼.jpg