立即預約 立即預約
免費定制整裝家居

免費定制整裝家居

一站置家 全程無憂 一省到底
hide.png

當前位置: 首頁 > 裝修案例效果圖 > 東亞國際城

東亞國際城 110平 北歐風格效果圖

收藏
案例風格 北歐 案例戶型 三居 案例面積 110平米
樓盤名稱 東亞國際城 設計師 林鳳裝飾全案設計師 案例類型 改善性住宅

設計理念:本案是以北歐風格為主的設計方案,本案設計中業(yè)主對北歐這種向往自由的生活方式的追求。

客廳
第1張
第2張
餐廳
第1張
第2張
第3張
臥室
第1張
衛(wèi)生間
第1張
廚房
第1張
門廳
第1張
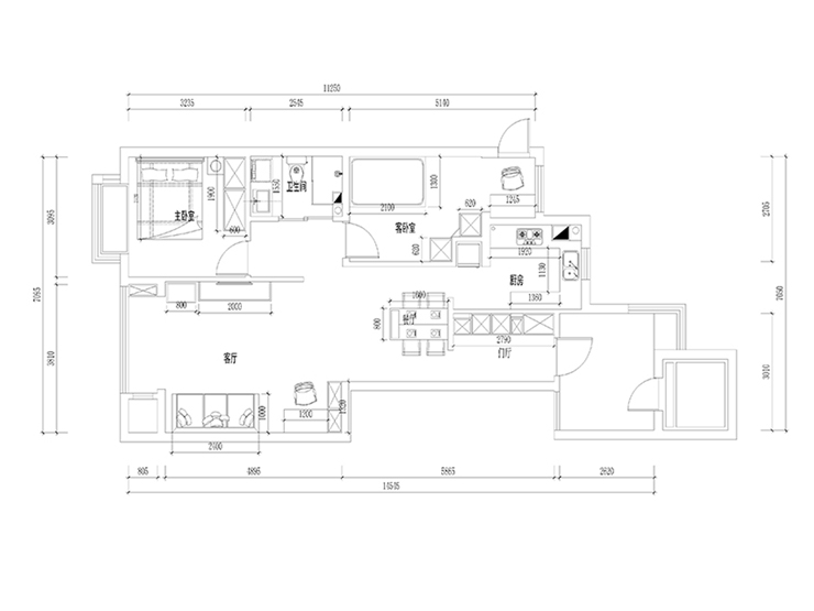
戶型圖
第1張
  • 案例詳情

姜宇-東亞國際城-110-北歐-客廳1.jpg 姜宇-東亞國際城-110-北歐-客廳2.jpg

客廳采用無吊棚設計,采用滑道射燈設計,背景墻采用組合柜設計,可以在電視吊柜展示男主人旅行的紀念品,可以回想每一處的風光。

姜宇-東亞國際城-110-北歐餐廳1.jpg 姜宇-東亞國際城-110-北歐餐廳2.jpg 姜宇-東亞國際城-110-北歐餐廳3.jpg

3.餐廳背景墻面采用文化石鋪貼,凸顯墻面的質感,和原木餐桌形成呼應。

姜宇-東亞國際城-110-北歐-臥室.jpg

4.由于主臥室的空間比較小,設計比較簡單,主要以舒適為主。

姜宇-東亞國際城-110-北歐-衛(wèi)生間.jpg

衛(wèi)生間沒有窗戶,采光比較差,所以墻磚以淺色為主,讓空間感覺大。

姜宇-東亞國際城-110-北歐廚房.jpg

廚房采用的開放式設計,廚房空間較小,采用了白色櫥柜,讓空間感覺明亮。

姜宇-東亞國際城-110-北歐-門廳.jpg 姜宇-東亞國際城-110-北歐-平面圖.jpg

案例設計師

林鳳裝飾全案設計師

設計師:林鳳裝飾全案設計師

從業(yè)時間:12年

設計理念:應時而變,為未來生活而設計

預約設計師

算算你家裝修多少錢

報名即享豐厚贈品,享半價裝修

免費報價
咨詢熱線:400-656-9909
20190221103704574636.jpg

精品設計案例

20180612134930523248.jpg 服務號二維碼.jpg