立即預約
免費定制整裝家居
一站置家 全程無憂 一省到底
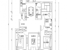
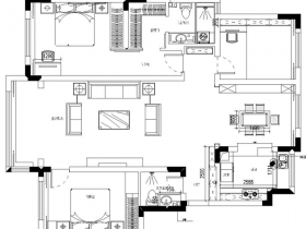
當前位置: 首頁 > 裝修案例效果圖 > 新中式,三居,121㎡ - 150㎡,戶型圖
設計說明:
設計理念:本案建筑面積140平米,根據業(yè)主需求設計了新中式風格,整體感覺模仿中國古代室內,以木紋感點綴,為什么叫新中式呢,因為在現代風格上添加古代風格,形成對比,也不突兀,視覺效果亮眼。
設計說明:
設計師整體設計理念:經過前期和客戶的溝通,整體格局開闊,不會有壓抑感,色彩搭配合理,不顯得單調,在滿足住戶基本需求的同時,增加美感
設計說明:
設計理念:新中式風格的室內設計,是一種將傳統(tǒng)中式文化與現代審美理念相結合的設計風格。在空間設計中既傳承了傳統(tǒng)中華文化的精髓,又融入現代生活的實際需求,打造出一個既具文化底蘊又不失去現代感的生活空間。
設計說明:
設計師整體設計理念: 新中式風格是一種時尚的中式風格,在加入一些傳統(tǒng)風格的中式融入之后,就成了新中式現代裝修風格,她不同于傳統(tǒng)的中式風格。是中式元素與現代材質的巧妙結合,中式家具、中式的裝飾品、以及布藝床品等一起相互輝映。
設計說明:
本案設計圍繞中式傳統(tǒng)文化元素、簡約輕奢時尚的特點來為業(yè)主打造一個舒適、時尚之家。
設計說明:
諸如暗香浮動,把意境駐留于空間,結合當代手法,結合中國文化特征,展現一個魅力無限且獨具氣質品味的空間
設計說明:
中式與現代相結合,大氣不失穩(wěn)重,利用對木紋與監(jiān)護線條的使用,完美的使兩種風格融合,提煉出符合現代年輕人喜歡的新中式。
設計說明:
陽光城135平3居室林鳳裝飾的是新中式中式為主。整體用料大多為實木,因為業(yè)主比較年輕,所以木色顏色不深,就顯得不那么老氣。